第1回
南台の家(吉村自邸)
会期:2006年12月16日から1月28日まで
土曜日と日曜日
時間: 13:00〜18:00
担当: 平尾 寛(ひらお ゆたか)
展示した内容: 図面模型写真解説文
来場者人数: 延べ530名
|

南台の家 アプローチ |
第2回
愛知県立芸術大学
会期:2007年2月17日から4月1日まで
土曜日と日曜日
時間 13:00〜18:00
担当 奥村昭雄( おくむらあきお )
永橋爲成(ながはしためなり)
展示した内容:図面・模型と写真
来場者人数: 延べ 337名
|

模型写真 |
第3回
家具とあかり
会期:2007年4月14日から5月27日まで
土曜日と日曜日
時間 13:00〜18:00
担当 奥村まこと(おくむら まこと)
益子 義弘 (ますこよしひろ)
展示した内容:家具 照明器具
図面と写真
来場者人数: 延べ 680名 |

家具 と あかり |
第4回
青山の家
会期:2007年6月9日から7月22日まで
土曜日と日曜日
時間 13:00〜18:00
担当 平尾 寛(ひらお ゆたか)
小林 武(こばやしたけし)
展示した内容:図面・模型と写真
来場者人数: 延べ 310名
|

池 と 客間 |
第5回
山中湖の家
会期:2007年9月8日から10月21日まで
土曜日と日曜日
時間 13:00〜18:00
担当 鈴木 彰(すずき あきら)
小林 武(こばやしたけし)
日高 章(ひだか あきら)
展示した内容:図面・模型と写真
来場者人数: 延べ 301名
|

居 間 |
第6回
軽井沢の家-脇田邸
会期:2007年11月3日から12月16日まで
土曜日と日曜日
時間 13:00〜18:00
担当 平尾 寛(ひらお ゆたか)
展示した内容:図面・模型と写真
来場者人数: 延べ453名
|


屋根伏図 と 外観 |
第7回
大屋根の祐天寺の家
会期:2008年1月13日から2月24日まで
土曜日と日曜日
時間 13:00〜18:00
担当 小林 武 (こばやしたけし)
展示した内容:図面・模型と写真
来場者人数: 延べ355名
|

立面図 |
第8回
NCR ビル
会期:2008年3月8日から4月20日まで
土曜日と日曜日
時間 13:00〜18:00
担当 奥村昭雄(おくむら あきお)
野沢正光(のざわまさみつ)
日高 章(ひだか あきら)
平尾 寛(ひらお ゆたか)
展示した内容:図面模型写真スライド
来場者人数: 延べ386名
|

1 階の階段 |
第9回
東山魁夷邸
会期:2008年5月3日から6月15日まで
土曜日と日曜日
時間 13:00〜18:00
担当 小川 洋 (おがわ ひろし)
奥村 まこと(おくむらまこと)
藤井 章 (ふじい あきら)
展示した内容: 図面・写真
来場者人数: 延べ430名 |

東山魁夷 吉村順三 |
第10回
ソルフェージスクール
会期:2008年6月28日から8月10日まで
土曜日と日曜日
時間 13:00〜18:00
担当 平尾 寛 (ひらお ゆたか)
展示した内容:図面写真(建物見学)
来場者人数: 延べ297名
|
ソルフェージスクール |
第11回
小さな森の家 吉村山荘
会期:2008年9月13日から10月26日まで
土曜日と日曜日
時間 13:00〜18:00
担当 平尾 寛 (ひらお ゆたか)
展示した内容: 図面 写真 模型
来場者人数: 延べ584名
|

「小さな森の家」 吉村山荘 |
第12回
宮 殿
会期:2008年11月8日から12月21日まで
土曜日と日曜日
時間 13:00〜18:00
担当 秋山信行(あきやまのぶゆき)
上田悦三(うえだ えつぞう)
永橋爲成(ながはしためなり)
日 章 (ひだか あきら)
益子義弘(ますこ よしひろ)
展示した内容:図面写真鳥瞰図模型
来場者人数: 延べ280名
|

鳥瞰図 |
第13回
田園調布の家-猪熊邸
会期:2009年1月10日から2月22日まで
土曜日と日曜日
時間 13:00〜18:00
担当 戸沢真木子(とざわ まきこ)
野口朝夫 (のぐち あさお)
日 章 (ひだか あきら)
展示した内容:図面・写真・模型
来場者人数: 延べ402名 |

2階 居 間 |
第14回
ヴィラージュ目黒-共同住宅
会期:2009年3月7日から4月19日まで
土曜日と日曜日
時間 13:00〜18:00
担当 平尾 寛 (ひらお ゆたか)
展示した内容:図面・写真
来場者人数: 延べ303名
|

居間 |
第15回
三つのホテル:小涌園ホテル
京都国際ホテル・ホテルフジタ
会期:2009年5月2日から6月14日まで
土曜日と日曜日
時間 13:00〜18:00
担当 小林武 (こばやしたけし)
藤井章 (ふじい あきら)
日高章 (ひだか あきら)
展示した内容:図面・写真・調度品
来場者人数: 延べ260名
|

ホテルと東山との位置関係 |
第16回
葉山の家
会期:2009年6月27日から8月9日まで
土曜日と日曜日
時間 13:00〜18:00
担当 奥村 まこと (おくむらまこと)
地引重巳 (じびき しげみ)
大澤 眞 (おおさわ まこと)
展示した内容:図面・写真・模型
来場者人数: 延べ409名 |
断面図
|
第17回
伊豆多賀の家
会期:2009年9月12日から10月18日まで
土曜日と日曜日
時間 13:00〜18:00
担当 藤井 章 (ふじい あきら)
原 和男 (はら かずお)
日高 章 (ひだか あきら)
展示した内容:図面・写真・模型
来場者人数: 延べ305名
|

外 観 |
第18回
ソーラーハウス
会期:2009年11月7日から12月13日まで
土曜日と日曜日
時間 13:00〜18:00
担当 平尾 寛 (ひらお ゆたか)
展示した内容:図面・写真
来場者人数: 延べ220名
|

外 観 |
第19回
スケッチ
会期:2010年1月9日から2月14日まで
土曜日と日曜日
時間 13:00〜18:00
担当 永橋爲成(ながはしためなり)
藤井 章 (ふじい あきら)
益子義弘(ますこ よしひろ)
展示した内容:スケッチ原画・写真
来場者人数: 延べ276名
|

ストックホルム市庁舎 1964 |
第20回
吉村順三とアメリカ
会期:2010年3月6日から4月11日まで
土曜日と日曜日
時間 13:00〜18:00
担当 奥村まこと(おくむらまこと)
野口朝夫 (のぐちあさお)
平尾 寛 (ひらおゆたか)
藤井 章 (ふじい あきら)
吉村隆子(よしむらたかこ)
展示した内容:図面・模型・写真
来場者人数: 延べ239名
|

Motel on the Mountain 1956
|
第21回
軽井沢の山荘C-折れ屋根の家
会期:2010年5月1日から6月6日まで
土曜日と日曜日
時間 13:00〜18:00
担当 小林 武 (こばやしたけし)
手嶋 保 (てしま たもつ)
展示した内容:図面・模型・写真
来場者人数: 延べ297名
|

入口三和土スケッチ |
第22回
御蔵山の家
会期:2010年6月26日から8月1日まで
土曜日と日曜日
時間 13:00〜18:00
担当 秋山信行(あきやまのぶゆき)
上田悦三(うえだえつぞう)
藤井 章(ふじいあきら)
展示した内容:図面・模型・写真
来場者人数: 延べ215名
|

外観 1966年 |
第23回
井の頭の家
会期:2010年9月11日から10月17日まで
土曜日と日曜日
時間 13:00〜18:00
担当 戸沢真木子(とざわ まきこ)
日高 章 (ひだかあきら)
展示した内容:図面・模型・写真
(ギャラリートーク)
来場者人数: 延べ449名
|

外観 2010年
|
第24回
青山タワービル
会期:2010年11月6日から12月12日まで
土曜日と日曜日
時間 13:00〜18:00
担当 小林 武 (こばやしたけし)
野口朝夫 (のぐちひあさお)
藤井 章 (ふじいあきら)
展示した内容:図面・模型・写真
(ギャラリートーク)
来場者人数: 延べ142名
|
外観 1969年 |
第25回
浜田山の家
会期:2011年1月15日から2月20日まで
土曜日と日曜日
時間 13:00〜18:00
担当 永橋爲成(ながはしためなり)
小林 武 (こばやしたけし)
展示した内容:図面・模型・写真
パノラマVR
(ギャラリートーク)
来場者人数: 延べ251名 |

外観 2010年 |
第26回
池田山の家
会期:2011年3月12日から4月17日まで
土曜日と日曜日
時間 13:00〜18:00
担当 平尾 寛 (ひらお ゆたか)
日高 章 (ひだか あきら)
藤井 章 (ふじい あきら)
展示した内容:図面・模型・写真
来場者人数: 延べ130名
|
外観 photo by K.Monma |
第27回
八ヶ岳高原音楽堂
会期:2011年5月7日から6月12日まで
土曜日と日曜日
時間 13:00〜18:00
担当 藤井 章 (ふじい あきら)
野口 朝夫 (のぐち あさお)
長谷山 純(はせやま じゅん)
原 和夫 (はら かずお)
日高 章 (ひだか あきら)
展示した内容:図面・模型・写真・VTR
来場者人数: 延べ260名
|

外観 photo by K.Monma
|
第28回
国際文化会館住宅 と
同志社大学アーモスト館新館
会期:2011年7月2日から8月7日まで
土曜日と日曜日
時間 13:00〜18:00
担当 平尾 寛 (ひらお ゆたか)
藤井 章 (ふじい あきら)
展示した内容:図面・模型・写真
来場者人数: 延べ139名
|

国際文化会館住宅 外観 |
第29回
湘南茅ヶ崎の家
会期:2011年9月10日から10月16日まで
土曜日と日曜日
時間 13:00〜18:00
担当 小林 武 (こばやしたけし)
日高 章 (ひだかあきら)
平尾 寛 (ひらお ゆたか)
展示した内容:図面・模型・写真
来場者人数: 延べ301名
|

食堂 ・ 居間 |
第30回
南台の家の工夫
会期:2011年11月5日から12月11日まで
土曜日と日曜日
時間 13:00〜18:00
担当 平尾 寛 (ひらお ゆたか)
藤井 章 (ふじい あきら)
吉村隆子(よしむらたかこ)
展示した内容:図面・模型・写真・解説
来場者人数: 延べ254名
|

南台の家 玄関 見返り
|
第31回
自由ヶ丘の家-園田邸
会期:2012年1月7日から1月29日まで
土曜日と日曜日
時間 13:00〜17:00
展示した内容:図面・模型・写真・解説
来場者人数: 延べ121名
|

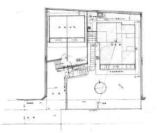
平面図 |
第32回
笄町(こうがいちょう)の家
会期:2012年3月3日から3月25日まで
土曜日と日曜日
時間 13:00〜17:00
展示した内容:図面・模型・写真・解説
来場者人数: 延べ129名
|

庭をのぞむ |
第33回
蓼科の山荘
会期:2012年5月5日から5月27日まで
土曜日と日曜日
時間 13:00〜17:00
展示した内容:図面・模型・写真・解説
来場者人数: 延べ152名
|

内観スケッチ |
第34回
愛知芸大・教職員住宅
会期:2012年7月7日から7月29日まで
土曜日と日曜日
時間 13:00〜17:00
展示した内容:図面・写真・解説
来場者人数: 延べ100名
|

愛知芸大・教職員住宅 |
第35回
山中湖の山荘
会期:2012年9月1日から9月23日まで
土曜日と日曜日
時間 13:00〜17:00
展示した内容:図面・写真・模型・解説
来場者人数: 延べ127名
|
外 観 |
第36回
豊橋の曙町建売住宅
会期:2012年11月3日から11月25日まで
土曜日と日曜日
時間 13:00〜17:00
展示した内容:図面・模型・解説
来場者人数: 延べ144名
|

透視図 |
第37回
P.S.コンクリートの家
会期:2013年1月5日から1月27日まで
土曜日と日曜日
時間 13:00〜17:00
展示した内容:図面・写真・解説
来場者人数: 延べ114名
|

1957年

工事中
|
第38回
'47〜'51の小住宅 3題
・田園調布の住宅
・千駄ヶ谷の住宅
・佐倉厚生園の付属住宅
会期:2013年3月2日から3月24日まで
土曜日と日曜日
時間 13:00〜17:00
展示した内容:図面・写真・模型・解説
来場者人数: 延べ139名
|

田園調布の住宅 1946年
|
第39回
氷川ヒルサイド共同住宅
会期:2013年5月4日から5月26日まで
土曜日と日曜日
時間 13:00〜17:00
展示した内容:図面・写真・模型・解説
来場者人数: 延べ 100名
|

2009 Google earth
|
第40回
成城学園の家
会期:2013年7月6日から7月28日まで
土曜日と日曜日
時間 13:00〜17:00
展示した内容:図面・写真・模型・解説
来場者人数: 延べ 113名
|

外観 |
第41回
小住宅 3題
会期:2013年9月7日から9月29日まで
土曜日と日曜日
時間 13:00〜17:00
展示した内容:図面・写真・模型5・解説
来場者人数: 延べ 235名
|

東中野の家1951年 |
第42回
千駄ヶ谷の家
会期:2013年11月2日から11月24日まで
土曜日と日曜日
時間 13:00〜17:00
展示した内容:図面・写真・模型・解説
来場者人数: 延べ 124名
|
玄関 アプローチ |
第43回
久我山の家
会期:2014年1月4日から1月26日まで
土曜日と日曜日
時間 13:00〜17:00
展示した内容:図面・写真・模型・解説
来場者人数: 延べ 101名
|

矩計図 |
第44回
世田谷の家
会期:2014年3月1日から3月23日まで
土曜日と日曜日
時間 13:00〜17:00
展示した内容:図面・写真・模型・解説
来場者人数: 延べ 117名
|

外観 |
第45回
東京郊外の家
会期:2014年5月3日から5月25日まで
土曜日と日曜日
時間 13:00〜17:00
展示した内容:図面・写真・模型・(解説)
来場者人数: 延べ 191名
|

外観 |
第46回
天の橋立 文珠荘
会期:2014年7月5日から7月27日まで
土曜日と日曜日
時間 13:00〜17:00
展示した内容:図面・写真・模型・解説
来場者人数: 延べ 95名
|

外観 |
第47回
高樹町の家
会期:2014年9月6日から9月28日まで
土曜日と日曜日
時間 13:00〜17:00
展示内容:図面・写真・現寸模型・解説
来場者人数: 延べ 250名
|

庭(居間外部) photo by さとうつねお
|
第48回
荻窪の家-2
会期:2014年11月1日から11月23日まで
土曜日と日曜日
時間 13:00〜17:00
展示内容:図面・写真・模型・解説
来場者人数: 延べ 105名
|

外観 |
第49回
軽井沢3軒並んだ山荘
会期:2015年1月10日から2月1日まで
土曜日と日曜日
時間 13:00〜17:00
展示内容:図面・写真・模型・解説
来場者人数: 延べ 140名
|

立面図
|
第50回
奈良国立博物館(現)西館
会期:2015年3月7日から3月29日まで
土曜日と日曜日
時間 13:00〜17:00
展示内容:図面・写真・解説
来場者人数: 延べ 97名
|

日本芸術院賞を受賞した時の版画
|
第51回
吉村の増改築の考え方
会期:2015年5月2日から5月25日まで
土曜日と日曜日
時間 13:00〜17:00
展示内容:図面・写真・模型・解説
来場者人数: 延べ 138名
|
Dの家 外観 |
第52回
新潟の貸家付住宅
会期:2015年7月4日から7月27日まで
土曜日と日曜日
時間 13:00〜17:00
展示内容:図面・・模型・解説
来場者人数: 延べ 101名
|
配置図 |
第53回
週末住宅 3題
会期:2015年9月5日から9月27日まで
土曜日と日曜日
時間 13:00〜17:00
展示内容:図面・写真・解説
来場者人数: 延べ 95名
|

山中湖 週末住宅
|
第54回
代々木 西原の住宅
会期:2015年11月7日から11月29日まで
土曜日と日曜日
時間 13:00〜17:00
展示内容:図面・写真・解説
来場者人数: 延べ 97名
|
透視図 |
第55回
目黒区 三田の家
会期:2016年 1月9日から1月31日まで
土曜日と日曜日
時間 13:00〜17:00
展示内容:図面・写真・解説
来場者人数: 延べ 124名
|

外観 |
第56回
四国 高松郊外に建つ
フレンチのレストラン
会期:2016年 3月5日から3月27日まで
土曜日と日曜日
時間 13:00〜17:00
展示内容:図面・写真・解説
来場者人数: 延べ 96名
|

1 階客席 |
第57回
九 重 山 荘
会期:2016年5月7日から5月29日まで
土曜日と日曜日
時間 13:00〜17:00
展示内容:図面・写真・解説
来場者人数: 延べ 102名
|

外観 |
第58回
代々木の家
会期:2016年7月2日から7月30日まで
土曜日と日曜日
時間 13:00〜17:00
展示内容:図面・模型・写真・解説
来場者人数: 延べ 140名
|

外観 |
第59回
熱海自然郷の山荘
会期:2016年9月3日から9月25日まで
土曜日と日曜日
時間 13:00〜17:00
展示内容:図面・写真・解説
来場者人数: 延べ 97名
|

外観 |
第60回
番町の家
会期:2016年11月5日から11月27日まで
土曜日と日曜日
時間 13:00〜17:00
展示内容:図面・写真・解説
来場者人数: 延べ 105名
|

外観・玄関 |
第61回
ニューヨーク郊外の
ゲストハウス
会期:2017年1月7日から1月29日まで
土曜日と日曜日
時間 13:00〜17:00
展示内容:図面・写真・解説
来場者人数: 延べ 102名
|

配 置 図
|
第62回
目黒の家
(世田谷区深沢)
会期:2017年3月4日から3月26日まで
土曜日と日曜日
時間 13:00〜17:00
展示内容:図面・写真・解説
来場者人数: 延べ 114名
|

外 観 |
第63回
深沢の家
会期:2017年5月6日から5月28日まで
土曜日と日曜日
時間 13:00〜17:00
展示内容:図面・写真・解説
来場者人数: 延べ 106名
|
外 観
|
第64回
目黒の家 K邸
会期:2017年7月1日から7月29日まで
土曜日と日曜日
時間 13:00〜17:00
展示内容:図面・写真・解説
来場者人数: 延べ 90名
|

外 観 |
第65回
葉山 海の家
会期:2017年9月2日から9月30日まで
土曜日と日曜日
時間 13:00〜17:00
展示内容:図面・写真・解説
来場者人数: 延べ 97名
|

外 観
|
第66回
京都 松ヶ崎の家
会期:2017年11月4日から11月26日まで
土曜日と日曜日
時間 13:00〜17:00
展示内容:図面・写真・解説
来場者人数: 延べ 84名
|
外 観 |
第67回
メリーランドの家
会期:2018年1月6日から1月28日まで
土曜日と日曜日
時間 13:00〜17:00
展示内容:図面・写真・解説
来場者人数: 延べ 88名
|
外 観 |
第68回
ホテル 小涌園
会期:2018年3月3日から3月31日まで
土曜日と日曜日
時間 13:00〜17:00
展示内容:図面・写真・解説
来場者人数: 延べ 102名
|

外 観 |
第69回
軽井沢の家 T邸
会期:2018年5月5日から5月27日まで
土曜日と日曜日
時間 13:00〜17:00
展示内容:図面・写真・解説
来場者人数: 延べ 109名
|

外 観 |
第70回
ジャパン・ハウス
会期:2018年7月7日から7月29日まで
土曜日と日曜日
時間 13:00〜17:00
展示内容:図面・写真・解説
来場者人数: 延べ 73名
|

外 観 |
第71回
モテル オン ザ マウンテン
会期:2018年9月1日から9月29日まで
土曜日と日曜日
時間 13:00〜17:00
展示内容:図面・写真・解説
来場者人数: 延べ 113名
|

バルコニー |
第72回
松 風 荘
会期:2018年11月3日から11月25日まで
土曜日と日曜日
時間 13:00〜17:00
展示内容:図面・写真・解説・スライドショー
来場者人数: 延べ 115名
|

MoMA中庭 |
第73回
ポカンティコヒルの家
会期:2019年1月5日から1月27日まで
土曜日と日曜日
時間 13:00〜17:00
展示内容:図面・写真・解説・模型
来場者人数: 延べ 118名
|

外 観
|
第74回
ニューヨークに
会期:2019年3月2日から3月24日まで
土曜日と日曜日
時間 13:00〜17:00
展示内容:図面・写真・解説・模型
来場者人数: 延べ 107名
|
JAL 外観 |
第75回
高輪の家
会期:2019年5月4日から5月26日まで
土曜日と日曜日
時間 13:00〜17:00
展示内容:図面・写真・解説
来場者人数: 延べ 102名
|

外 観 |
第76回
南台の家 talk T
会期:2019年7月6日(土)
14日(日)
時間 14:00〜16:30
talk内容:図面・写真
来場者人数: 延べ 30名
|

南台の家 |
第77回
青山の家 talk U
会期:2019年9月7日(土)
15日(日)
21日(土)
時間 14:00〜16:30
talk内容:図面・写真
来場者人数: 延べ 42名
|

青山の家 室内 |
第78回
国際文化会館の
付属住宅 talk V
会期:2019年11月9日(土)
17日(日)
時間 14:00〜16:00
talk内容:図面・写真
来場者人数: 延べ 29名
|

外 観 |
第79回
千駄ヶ谷の家 talk W
会期:2020年 1月11日(土)
19日(日)
時間 14:00〜16:00
talk内容:図面・写真・模型
来場者人数: 延べ 29名
|

玄 関 アプローチ |
第80回
自由が丘の家 talk X
会期:2020年 3月14日(土)
22日(日)
時間 14:00〜16:00
talk内容:図面・写真・模型・スライドショー
来場者人数: 延べ 29名+1名
|

自由が丘の家 平面図 |
 |
トップページに戻る
|